| Central PA Office Sale |
OS17062 |
2407 Park Drive, Harrisburg, PA 17110 Commerce Park |
Dauphin County Susquehanna Township |
|
|
| Attractive two-story masonry office building on a corner lot in Commerce Park with convenient access to I-81, shopping, restaurants, and hotels. Parking is ample and is split between front and rear atrium lobbies. |
|
|
|
|
| Daniel J. Alderman |
Dalderman@naicir.com |
717-761-5070 ext. 132 |
|
| Sq Ft Available |
29,000 SF |
| Min Contiguous SF |
29,000 SF |
| Max Contiguous SF |
29,000 SF |
| Availability |
Immediately |
| Space Available |
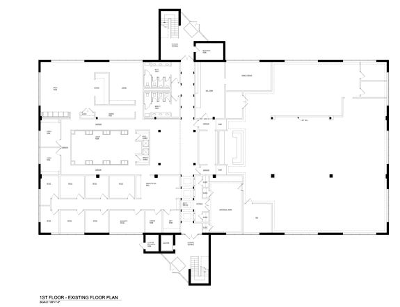
See attached floor plans |
| Rooms & Sizes |
Open floor plan with some private offices and many large windows provide abundant natural light. Furniture and cubicles are negotiable. |
| Total Bldg Sq Ft |
29,000 SF |
| Construction |
Masonry |
| Year Constructed |
1988 |
| Basement |
No |
| Elevator |
Yes |
| Restrooms |
Four; two per floor |
| Reinforcement Method |
Joist |
| No. Of Floors |
Two |
| Ceiling Height |
8'10" |
| Sprinklers |
No |
| Electrical Capacity |
600 Amps; 3 phase |
| HVAC |
Electric |
| Roof |
Rubber |
| Ceiling Type |
Suspended acoustic tiles |
| Walls |
Drywall and brick |
| Floor Type |
Concrete |
| Lighting |
Fluorescent |
| Business ID Sign |
Yes |
| Equipment |
Non-active security system. Key FOB system. |
| Additional Info |
Raised computer floor in a large area of the first floor. Usable square feet roughly 27,300. The property has an emergency generator hook-up system; no generator. |
| Tax Parcel # |
62-021-182 |
| Acres |
2.540 AC |
| Sq. Ft. |
110,642.4 SF |
| Frontage |
230' on Park Drive |
| Dimensions |
See attached tax map |
| Parking |
147 parking spaces |
| Parking Restrictions |
Good parking ratio of 5/1000 SF |
| Utilities & Zoning Information |
| Water |
Public |
| Sewer |
Public |
| Zoning |
BOR - Business-Office-Residential District; permits finance and insurance offices, professional offices, health practitioners office, financial institutions, etc. |
| Total Size |
29,000 SF |
| Rooms & Sizes/Lots |
See attached floor plans |
| Restroom Facilities |
Four; two per floor |
| HVAC |
Electric |
| Price |
$2,399,000 |
| Real Estate Tax |
$53,758.58 |
| Transfer Tax |
Divided equally between buyer and seller |
| Financing |
Conventional or cash |
|
Information concerning this offering comes from sources deemed reliable, but no warranty is made
as to the accuracy thereof, and it is submitted subject to errors, omissions, change of price
or other conditions, prior sale or lease, or withdrawal without notice. All sizes approximate.
|
| Picture 2: Aerial
| 
| Picture 3: Exterior Picture
| 
| Picture 4: Interior Picture
| 
| Plan 1: Interior Picture
| 
| Plan 2: First Floor Plan
| 
| Plan 3: Second Floor Plan
| 
| Plan 4: Tax Map
| 
|
|
|