| Central PA Office Lease |
OL14028 |
112 Market Street, Harrisburg, PA 17101 Veterans Memorial Office Building |
Dauphin County |
|
|
| Great downtown location, directly across from the Dauphin County Courthouse. Easy access to all the downtown business and entertainment districts. There are suites available in all sizes, from a single office to an entire floor. The fifth floor suite was recently renovated with expansive views of the Susquehanna River. Parking is available in the Market Square Garage at market rates. |
|
|
|
|
| Bill Gladstone |
Wgladstone@naicir.com |
717-761-5070 ext. 120 |
|
| Sq Ft Available |
13,745 SF |
| Min Contiguous SF |
155 SF |
| Max Contiguous SF |
5,910 SF |
| Availability |
Immediately |
| Space Available |
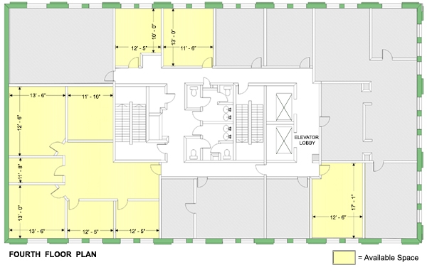
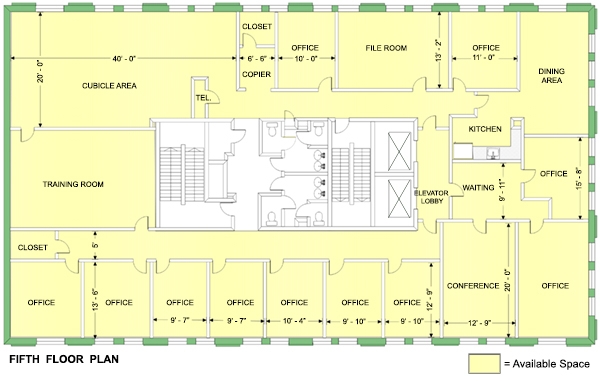
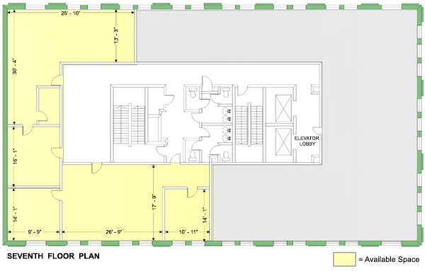
Fourth floor: 1,787 SF Fifth floor (entire floor): 5,910 SF Sixth floor: 3,555 SF Seventh floor: 2,493 SF |
| Rooms & Sizes |
See attached floorplans |
| Additional Info |
Various suite sizes are available.
The square footage includes a 10% common area factor. |
| Total Bldg Sq Ft |
45,000 |
| Renovation Year |
2002 |
| Construction |
Masonry |
| Year Constructed |
1918 |
| Basement |
Yes |
| Elevator |
Two |
| Capacity |
2,500 lbs. each |
| Restrooms |
Two in-common on each floor, except for full floor tenant spaces |
| No. Of Floors |
Eight |
| Ceiling Height |
9' |
| Sprinklers |
Yes |
| HVAC |
Gas-forced hot air; electric central air conditioning |
| Roof |
Flat rubber |
| Ceiling Type |
Acoustic tile drop ceiling |
| Walls |
Drywall |
| Floor Type |
Carpet over cement |
| Lighting |
Various fluorescent and parabolic fixtures |
| Business ID Sign |
Lobby directory and suite signage |
| Tax Parcel # |
03-003-036 |
| Acres |
0.170 AC |
| Sq. Ft. |
7,350 |
| Frontage |
Approximately 70' on Market Street |
| Dimensions |
70' x 105' |
| Fencing |
None |
| Parking |
Accomodations can be made to provide spaces in Market Square Plaza Garage ($205/space/month) |
| Parking Restrictions |
None on-site |
| Topography |
Flat |
| Utilities & Zoning Information |
| Water |
Public |
| Sewer |
Public |
| Gas |
Yes |
| Zoning |
PB-2 Planned Business Zone No. 2; permits office uses, professional and business offices. |
| Price per SF |
$14.00 |
| Price per SF (notes) |
Rent is gross excluding in-suite janitorial |
| Monthly Payments |
Varies on amount of space leased |
| Annual Rent |
Varies on amount of space leased |
| Rentable or Useable |
Rentable |
| Real Estate Taxes |
Included in lease rate |
| Operating Expenses |
Included in lease rate |
| Insurance |
Included in lease rate |
| Finish Allowance |
Negotiable |
| Lease Term |
Negotiable |
| Options |
Negotiable |
| Escalation |
Negotiable |
| Possession |
At lease commencement |
| Building Hours |
8am - 6pm daily |
| Security Deposit |
Amount equal to two months' rent |
Landlord/Tenant Service Responsibilities |
| Heat: |
Landlord |
Taxes: |
Landlord |
| Trash Removal: |
Landlord |
Electric: |
Landlord |
| Insurance: |
Landlord |
Janitorial: |
Tenant |
| Air Conditioning: |
Landlord |
Structural Repairs: |
Landlord |
| HVAC Repairs: |
Landlord |
Parking Lot Maint: |
|
| Interior Repairs: |
Tenant |
Light bulbs: |
Tenant |
| Water & Sewer: |
Landlord |
Plumbing Repairs: |
Landlord |
| Supplies: |
Tenant |
Roof Repairs: |
Landlord |
|
|
Information concerning this offering comes from sources deemed reliable, but no warranty is made
as to the accuracy thereof, and it is submitted subject to errors, omissions, change of price
or other conditions, prior sale or lease, or withdrawal without notice. All sizes approximate.
|
| Picture 2:
| 
| Picture 3:
| 
| Plan 1:
| 
| Plan 2:
| 
| Plan 3:
| 
| Plan 4:
| 
|
|
|